Ex escuela Japón a un paso de concretar proyecto de Centro de Educación y Salud Municipal
Luego de ser aprobada, de forma unánime, la propuesta presentada por la Corporación Municipal a Bienes Nacionales en la Comisión de Ordenamiento Territorial del Consejo Regional de Valparaíso, el próximo jueves 20 de junio, el pleno del CORE, decidirá el comodato de uso definitivo para el inmueble.

Más de dos años han esperado los vecinos de Playa Ancha y del Movimiento Recuperemos la Escuela Japón; apoyados por la Corporación Municipal de Valparaíso; para obtener el comodato de uso definitivo del ex establecimiento educacional, emplazado en el segundo sector de Playa Ancha con el objetivo de recuperar este inmueble público y construir un Centro de Educación y Salud en beneficio de toda la comunidad de Valparaíso.
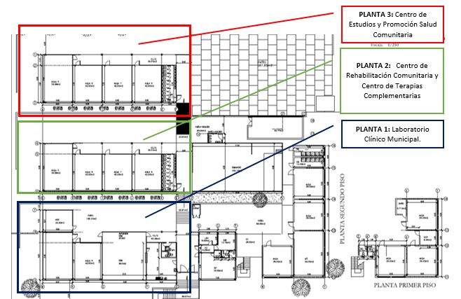
Situación que estaría a un paso de concretarse, tras la aprobación unánime de la propuesta presentada por la Corporación Municipal de Valparaíso a Bienes Nacionales, en la Comisión de Ordenamiento Territorial del Consejo Regional de Valparaíso (CORE). En dicha instancia, la comisión conoció el proyecto, el cual contempla un Centro de Educación No formal; un Centro Comunitario de Rehabilitación; un Centro de Terapias Alternativas Complementarias; un Centro de Estudios y Promoción de Salud Comunitaria y; un Laboratorio Clínico Municipal.
Tras esta aprobación, el próximo jueves 20 de junio, en el pleno del CORE, se realizará la votación respecto al comodato de uso definitivo para la ex Escuela Japón, donde vecinos y vecinas de Playa Ancha esperan con ansias concretar este proyecto que otorga la oportunidad de implementar acciones inmediatas, que permitan asumir brechas en la atención de salud en el ámbito odontológico, rehabilitación integral, exámenes de laboratorio, terapias alternativas complementarias y educación en salud.
Respecto a esta votación, el director de Salud de la Corporación Municipal de Valparaíso, Alejandro Escobar, comentó que “esta es una importante noticia para Valparaíso, que recoge una demanda histórica de los vecinos de Playa Ancha, del Movimiento Recuperemos la Escuela Japón y que se tradujo en un proyecto conjunto con el área de salud presentado hace dos años a la seremi de Bienes Nacionales y que recién vemos como está llegando a puerto. Estos servicios nos permitirán mejorar resolutividad y ofertar a precios populares atenciones odontológicas, kinesiológicas y terapias alternativas”
“Pero, si dudas, lo más importante del proyecto es que lo estamos haciendo con los vecinos, desarrollando actividades de promoción y educación de salud. Es esta alianza entre vecinos y municipio lo que hace posible este futuro centro, que irá en beneficio no solo de Playa Ancha sino de todo Valparaíso. Por eso saludamos la votación del Consejo Regional que por fin dio el vamos a este comodato tan esperado por todos y en particular por la Alcaldía Ciudadana”, agregó Escobar.
Idea que es compartida por Ana Pacheco, vocera del Movimiento Recuperemos la Escuela y quien presentó el proyecto junto a la Corporación Municipal, ante la Comisión de Ordenamiento Territorial del Consejo Regional.
“Son muchas emociones, estamos felices, estamos expectantes y ansiosos, porque no queremos perder nuestros proyectos. Estamos trabajando en la escuela, hemos traído operativos en conjunto con el consultorio, médicos, la óptica y estamos haciendo atención a la comunidad. Hemos hecho también muchos talleres, pero queremos continuar, no queremos que nos corten las alas. Es por eso que estamos ansiosos por la respuesta del día jueves y esperemos que todo se agilice. Estamos muy agradecidos de los cores y de la seremi y por supuesto de la Corporación Municipal, que es nuestro mayor pilar en conjunto con la alcaldía, que nos han dado mucho apoyo, al creer y confiar en la comunidad organizada., expresó.

Entre las iniciativas que contempla este proyecto destacan el Centro de Educación no Formal, que contempla una guardería infantil, una biblioteca e infocentro, brindar apoyo para nivelación de estudios, alfabetización y alfabetización digital y apoyo escolar; un Centro Comunitario de Rehabilitación, que permita que las personas con capacidades diferentes alcancen el mayor grado de participación y autonomía para ejercer una o más actividades esenciales de la vida diaria y; un Centro de Terapias Alternativas Complementarias, de manera accesible y a precios justos, entre ellas, terapias florales, reiki, biomagnetismo, auriculoterapia y yoga integral.
Además, el proyecto contempla la instalación de un Centro de Estudios y Promoción de Salud Comunitaria, enfocado en la formación de agentes comunitarios de salud como cuidadores de personas en situación de dependencia, salud mental comunitaria, salud oral, uso racional de medicamentos, alimentación saludable, educación sexual y herramientas y técnicas de apoyo para el trabajo comunitario en salud y; un Laboratorio Clínico Municipal, que contará con una cartera de servicios estandarizada que contempla exámenes de hematología, bioquímica, inmunología y microbiología, contando con el equipamiento suficiente para poder responder al análisis del 90% de los exámenes requeridos por los CESFAM de la Corporación Municipal y generando un ahorro de un 40% de los costos actuales, además de incorporar una sala de toma de muestras donde accederá público general con un costo del 50% menos del precio promedio de mercado.

Comunicador y empresario de medios con una trayectoria de más de 14 años en la industria. Es el actual propietario de SoloMultimedios SpA, empresa matriz que gestiona La Opinión Online, Solo Radio y Solo Multimedios Producciones. Miembro del directorio de la Asociación de Comunicadores de Hispanoamérica (ADC) y Representante Legal de la Organización de Comunicadores Asunción. Su experiencia editorial incluye una década de liderazgo como Director de Radio Asunción y la cobertura acreditada de eventos de trascendencia internacional, tales como la visita de S.S. Francisco a Chile y de forma ininterrumpida desde 2013 en el Festival Internacional de la Canción de Viña del Mar y el Festival del Huaso de Olmué.

